| Objekt-ID: | 059.007.004 | | Straße: | Bunsenstraße 7 Bei Google Maps zeigen | | PLZ Ort: | 39124 Magdeburg | | Beschreibung: | In unserer sehr gepflegten denkmalgeschützten Wohnanlage liegt diese hochwertig ausgestattete 3-Zimmer-Wohnung. Schon im Flur findet man die ersten Highlights wie Deckenstrahler und große Bodenfliesen. Durch die in Bucheoptik gehaltenen Zimmertüren gelangt man in die mit Laminat ausgestatteten Wohnbereiche. Diese sind mit einer üppigen Elektroausstattung, sowie mit TV- und Telefonanschluss versehen. Auf dem zur Wohnung gehörenden Westbalkon kann man dann gemütlich den Tag ausklingen lassen. Interesse! Dann rufen Sie uns an! | | Ausstattung: | Westbalkon; Fliesen in Bad, Küche und Flur, sowie Laminat in allen Wohnbereichen; Bad mit hochwertiger Sanitärausstattung und Fenster; üppige Elektroausstattung mit TV- und Telefonanschluss in Wohn-, Kinder- und Schlafzimmer, sowie Deckenspots im Flur; sämtliche Wand- und Deckenflächen mit weißer Raufasertapezierung versehen; Wechselsprechanlage, Wirtschaftskeller, grüner Innenhof mit Spielplatz | | Lage: | Durch die ruhige aber dennoch zentrale Lage unserer gepflegten Wohnanlage haben Sie vielfältige Einkaufs- und Freizeitmöglichkeiten. Beispielsweise sind Einkaufsmärkte, ein Bäcker und Friseur sowie ein Getränkemarkt in 2 - 5 Minuten zu Fuß erreichbar. In Ihrer Freizeit können Sie einen Abstecher in das Eiscafé oder zum Tennisplatz wagen. Außerdem erreichen Sie fußläufig innerhalb von 10 Minuten den Park Vogelgesang an den der Magdeburger Zoo grenzt. Ebenfalls anliegend an den Park befindet sich eine Grundschule. Auch für Ihre medizinische Versorgung, wie ein allgemeiner Arzt, Physiotherapie, Krankengymnastik und eine Apotheke, ist gesorgt. Eine S-Bahn- und eine Straßenbahnhaltestelle befinden sich in unmittelbarer Nähe der Wohnanlage um zum Beispiel das Stadtzentrum zu erkunden. Das Naherholungszentrum Neustädter See sowie das Kultur- und Sportzentrum liegen vor Ihrer Tür. | | Kaltmiete: | 459,30 EUR | | Nebenkosten: | 121,50 EUR | | Heizkosten: | 130,00 EUR | | Wohnfläche: | 61,24 qm | | Zimmer: | 3 | | Etage: | 2.OG | | Etagenzahl: | 3 (inkl. EG) | | Badezimmer: | 1 | | Heizungsart: | Zentralheizung | | Befeuerungsart: | Gas | | Energieausweistyp: | Endenergiebedarf | | Kennwert: | 103 kWh/(m²*a) | | Objektzustand: | VOLL SANIERT | | Baujahr: | 1938 | | Verfügbar ab: | 15.03.2026 | | Mietsicherheit: | € 1.377,90 EUR | | Sonstiges: | | | Links: | | | Kontakt: | Frau Karola Wünsche +49 391 25443299 auch Sa./So. vermietung@gewo.org Per Kontaktformular
Angebot ausdrucken |
 Kocharena
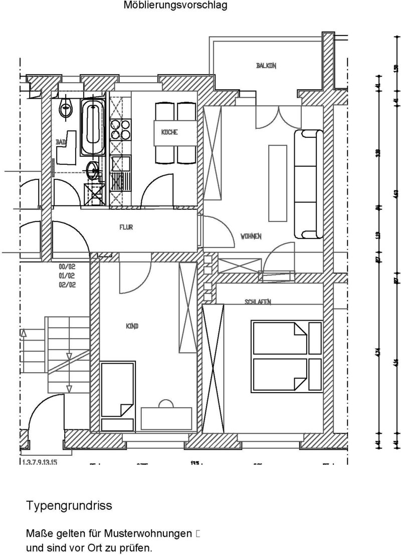
 Typ 2 Bunsenstr. 7 re
| |  Grüner Innenhof
 Flur mit hellen Fliesenboden
 Wohn- und...
 ...Schlafbereiche mit Laminat
 Bad mit Fenster und Badewanne
|