| Objekt-ID: | 009.005.001 | | Straße: | Rossittenweg 5 Bei Google Maps zeigen | | PLZ Ort: | 31275 Lehrte | | Beschreibung: | Sie finden hier eine helle, freundliche und gut geschnittene 4-Zimmerwohnung in unserem energetisch modernisierten Wohnungsbestand vor. Neben dem Wärmedämmverbundsystem an der Fassade sind alle Fenster und die Balkontür aus Kunststoff mit einer Isolierverglasung versehen. Die Wände wurden in 2024 fachgerecht glatt gespachtelt und geweißt. Der Sanitärbereich ist bereits mit weißen Wand- u. Bodenfliesen und Sanitärobjekten saniert. Sofern Sie nicht eine eigene Spiegelschranklösung einbauen möchten statten wir Ihnen gerne den Waschtischbereich mit einen Wandspiegel und einem Klemmstrahler aus. In den übrigen Räumen wurden im Rahmen der in 2024 ausgeführten Handwerksarbeiten neue Bodenbeläge (Fliesen und Design-Vinylböden) und weiße Zimmertürelemente eingebaut. Sämtliche Wohn- und Schlafräume sind mit einer Vielzahl von Steckdosen, Telefon- und TV-Empfangsdosen ausgestattet, Bad und Flurdecken enthalten attraktive LED-Deckenstrahler. Zur Ausstattung gehört auch eine moderne Multimediavorbereitung (LAN-Verkabelung und Routeraufnahmekasten u. P. verlegt) für Ihre EDV-Technik. Sie können praktisch im August sofort einziehen.
Erschließung des Gebäudes mit Glasfaser ist durchgeführt, Sie können schnelles Internet über einen Provider buchen.
Im Umfeld des Hauses befindet sich eine gepflegte Grünanlage, hübsch gestaltet und bepflanzt, freuen Sie sich auf das kommende Frühjahr und modernes Wohnen in einer schönen, modernen Wohnung mit Loggia!
Durch einen vor Ort ansässigen Hausmeister (Winterdienst incl.!) und einem zusätzlichen telefonisch zu erreichenden Notdienst, gewähren wir eine optimale Betreuung des von Ihnen bewohnten Objektes.
Im freien Umfeld der Hausanlage Rossittenweg 1 - 7 befinden sich eine ausreichende Anzahl kostenloser PKW-Stellplätze. | | Ausstattung: | Saniertes Bad (Fliesen weiß/marmoriert mit ansprechender Bordüre und weißen Sanitärobjekten/moderner Röhrenheizkörper) mit Fenster,
modernisierte Elektroinstallation, elektrischer Herdanschluß, Flur und Bad mit integrierten Deckenstrahlern ausgestattet, Multimedialösung/-verteilung für Ihre Internettechnik,
Bodenbeläge (Fliesen/Vinyl)
Kunststofffenster mit Isolier-Verglasung,
neue, weiße Zimmertürelemente,
Zentrale Wärme- und Warmwasserversorgung mit Zählereinrichtungen,
Kellerraum mit Steckdose über den Wohnungszähler gespeist,
grünes und naturnahes Umfeld mit schön gepflanzter Anlage,
Glasfaseranschluß möglich und buchbar,
kostenlose Parkplätze im freien Umfeld der Anlage. | | Lage: | Der zur Stadt Lehrte gehörende und zwischen Hannover und Braunschweig gelegene Ort Hämelerwald entstand 1848 aus einer Bahnhaltestelle, wobei der angrenzende Wald als Namensgeber für das junge Dorf mit etwa 4.600 Einwohnern herhielt. Der fußläufig erreichbare Bahnhof und Wald sind auch heute noch vorhanden und stehen, neben dem Autobahnanschluss an die BAB 2, für die gute Erreichbarkeit des Ortes, sowie für eine erholsame Freizeitgestaltung. Das Freizeitangebot wird durch verschiedene Gastronomiebetriebe und Sportvereine ergänzt.
Viele Einkaufsmöglichkeiten wie Beispielsweise Supermärkte, Bäcker, Friseure und eine Postannahmestelle mit Buchhandel und EDV-Zubehör sind fußläufig innerhalb von 5 Minuten erreichbar. Die im Umkreis von 500m ansässigen Kindergärten, sowie die Grund- und weiterführende Schulen bieten eine ganztägige und nahe gelegene Betreuung Ihrer Kinder. Die medizinische Versorgung ist durch einen Allgemeinmediziner, einen Zahnarzt, div. therapeutischen Praxen sowie einer Apotheke gewährleistet. | | Kaltmiete: | 769,00 EUR | | Nebenkosten: | 174,00 EUR | | Heizkosten: | 189,00 EUR | | Wohnfläche: | 91,00 qm | | Zimmer: | 4 | | Etagenzahl: | 4 (inkl. EG) | | Schlafzimmer: | 3 | | Badezimmer: | 1 | | Heizungsart: | Zentralheizung | | Befeuerungsart: | Gas | | Energieausweistyp: | Endenergiebedarf | | Kennwert: | 85 kWh/(m²*a) | | Objektzustand: | Nach Vereinbarung | | Baujahr: | 1969 | | Verfügbar ab: | 01.08.2026 | | Mietsicherheit: | 2307 EUR | | Sonstiges: | | | Links: | Homepage des Anbieters | | Kontakt: | Herr Torsten Strempel +49 5175 953031 auch Sa./So. vermietung@gewo.org Per Kontaktformular
Angebot ausdrucken |
 Türöffner mit Gegensprechanlage!
 mit Abluftanschluß!
 Wohnzimmer...
 Loggia in Südausrichtung!
 Kinderzimmer mit viel Platz!
 großer Kellerraum!
 moderne Elektrik!
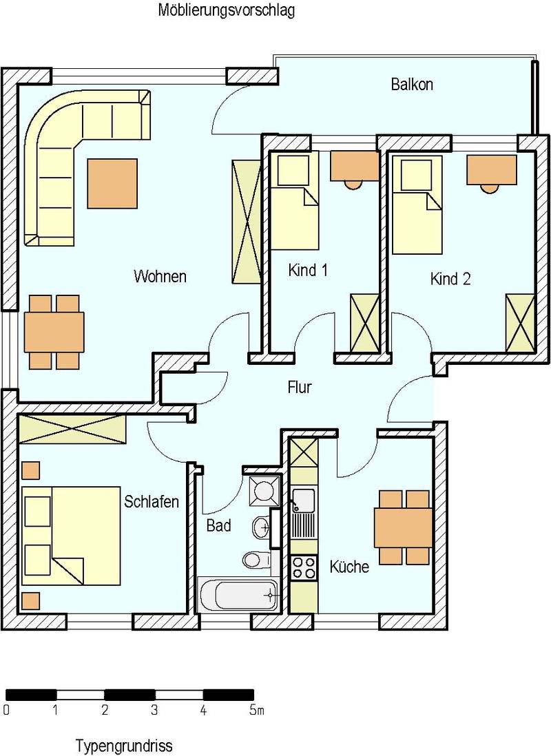
 Grundriss
| |  Modernisierte Balkonwohnung
 Willkommen!
 weiße Zimmertürelemente!
 praktischer Wandschrank!
 Platz für Ihre Einbauküche!
 helles Bad mit Tageslicht!
 ...mit Eßplatz!
 Elternschlafzimmer!
 Arbeits- oder Kinderzimmer!
 Kellersteckdose für Dies und Das!
 verbrauchsgenaue Abrechnung!
|